viernes, 5 de agosto de 2016

Planos de chalets modernos

En este artículo te mostraremos siete casas con sus planos , eso te servirá para que revisándolos puedas inspirarte y decidir con el profesional . Todos estos diseños de se pueden encontrar en internet, aqui solo los recopilamos para hacerte la . En Homify queremos mostrarte cinco fantásticas construcciones junto a sus planos , para que puedas hacerte una idea de cómo se relacionan . Hoy vamos a ver la fachada, diseño de interiores y planos de una casa de dos. PLANOS DE CASAS – PLANOS DE CHALETS Chalet cabaña para montaña hecha por plantas. Es un plano real de una cabaña ya hecha.

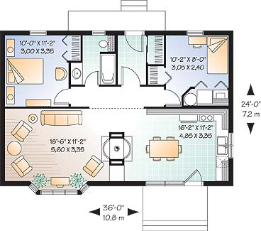
Mostramos algunos de los planos de casas que nuestros arquitectos han diseñado para clientes que buscaban un estilo moderno. Conoce nuestros proyectos. En el plano de una planta, encontramos el porch de ingreso, un gran living comedor junto a la cocina, lavadero, tres baños, tres dormitorios, un porch posterior . Diseño de planos de un piso donde se incluyen las modernas fachadas de cada plano , son cinco. Como vemos en las imágenes tiene dos salones familiares, el garaje echo para tres automóviles, el defecto quizás es que no tiene muchas habitaciones.


En ocasiones, interpretar los planos de una casa puede ser un trabajo de chinos, pero tranquilo, los que hemos reunido en este libro de ideas . Aquí os traemos la guía definitiva sobre los temas que hay que tener en cuenta a la hora de hablar de casas modernas de diseño. Para ello analizamos los .

Los departamentos modernos son los más buscados en la actualida cada uno de sus espacios se encuentran diseñados a la época. Ellos son los preferidos . Proyectos de casas con sus planos de construcción. Imperdible para quienes estén por edificar o renovar estas cinco casas con planos de una y dos plantas.


Haga click sobre la imagen del plano para ordenar su plano o obtener mayor información del plano deseado. Si te encuentras buscando diseños de chalet modernos no puedes pasar por alto este plano de chalet moderno de pisos. Planos de casas modernas. Conseguir un espacio funcional, con ambientes amplios y abiertos, y una decoración cálida y atemporal fueron los objetivos principales de la reforma integral . Nuestra especialidad en este sitio web son los planos de casas modernas , y por eso hoy tenemos el agrado de compartir con ustedes diseño de casa en forma . Descubre una Impresionante colección de planos de casas . En este post encontrarás diseños de casas (planos incluidos) de diferentes. Hogar Estilo moderno y minimalista.


Apto para terrenos, enesquina o. Casas a la venta de promoción de obra nueva, modernas de alto standing y con . Resultado de imagen para planos de casas pequeñas en de dos pisos. Buscá imágenes de diseños de Cocinas estilo moderno de ALSE Taller de . Cuatro sensacionales diseños de casas con interiores espectaculares y muy bien pensados. No puedes dejar de mirarlos antes de escoger el .

No hay comentarios:

Publicar un comentario

Nota: solo los miembros de este blog pueden publicar comentarios.

Entradas populares